三大优势
价格合理、质量稳定、交货快捷
专业服务
提供全套工程阀门解决方案,阀门售前、售中、售后专业服务
销售热线:021-56622563 56084471
图文传真: 021-56084473

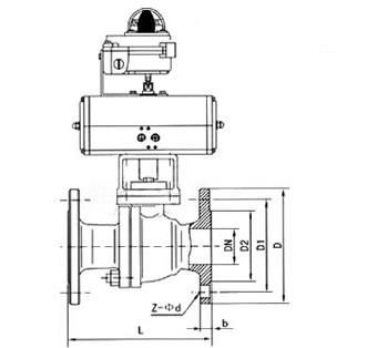
ZSHO气动O型切断球阀


ZSHO气动O型切断球阀主要用于截断或接通管路中的介质,亦可用用于流体的调节与控制,它与其它阀类相比,具有以下一些优点。
1、流体阻力小、球阀是所有阀类中流体阻力最小的一种,即使是缩径球阀,其流体阻力也相当小。
2、止推轴承减小阀杆磨擦力矩,可使阀杆长期操作平稳灵活。
3、阀座密封性能好,采用聚四氟乙烯等弹性材料制成的密封圈,结构易于密封,而且球阀的阀封能力随着介质压力的增高而增大。
4、阀杆密封可靠,由于阀杆只作彷转动运而不做升降运动,阀杆的填料密封不易破坏,且密封能力随着介质的压力增高而增大。
5、由于聚四氟乙烯等材料具有良好的自润滑性,与球体的磨擦损失小,故球阀的使用寿命长。
6、下装式阀杆和阀杆头部凸阶防止阀杆喷出,如火灾造成阀杆密封破坏,凸阶与阀体间还可形成金属接触,确保阀杆密封。
7、 防静电功能:在球体、阀杆、阀体之间设置弹簧,能将开关过程产生的静电导出。
气动球阀性能规范
|
公称通径mm |
D | |||||
|
N15-DN |
|
300 | ||||||
|
材料代号 |
C |
P |
R | |||
|
主要零件 |
阀 体 |
WCB |
ZG1Cr18Ni9Ti |
ZG1Cr18Ni 12Mo2Ti | ||
|
球 体 |
2Cr13 |
1Cr18Ni9Ti |
1Cr18Ni12MoTi | |||
|
阀 杆 |
2Cr13 |
1Cr18Ni9Ti |
1Cr18Ni12MoTi | |||
|
密封圈 |
增强聚四氟乙烯 对位聚苯 | |||||
|
填 料 |
聚四氟乙烯 柔性石墨 | |||||
|
适用工况 |
适用 介质 |
蒸汽、水 |
硝酸类 |
醋酸类 | ||
|
适用 温度 |
-28℃ - 300℃ | |||||
|
执行器 |
型 号 | |||||
|
AW、DA/SR系列、GTE系 |
|
列、TH系列等 | |||||
|
气源压力 |
0.4-0.7MPa | ||||
|
试验压力 (Mpa) |
公称压力(Mpa) |
压力级(class) |
JIS(Mpa) | |||||||
|
1.6 |
2.5 |
4.0 |
6.4 |
10.0 |
150 |
300 |
600 |
10K |
20K | |
|
强度试验 |
2.4 |
3.8 |
6.0 |
9.6 |
15.0 |
3.1 |
7.8 |
15.3 |
2.4 |
3.8 |
|
密封试验 |
1.8 |
2.8 |
4.4 |
7.0 |
11.0 |
2.2 |
5.6 |
11.2 |
1.5 |
2.8 |
|
气密试验 |
0.5~0.7 | |||||||||
气动球阀安装尺寸表
|
公称 通径 DN(mm) |
尺 寸(mm) |
执 行 器 型 号 | ||||||||||||||
|
1.6MPa |
2.5MPa |
4.0MPa | ||||||||||||||
|
L |
D |
D1 |
b |
Z-фD |
L |
D |
D1 |
b |
Z-фD |
L |
D |
D1 |
b |
Z-фD |
可选配DA/SR、QGSY、 SY-CH、GTD/GTE AW/AWS、SY-YD、 系列执行器 以上选配仅供参考具体 选区用根据实际要求 | |
|
15 |
130 |
95 |
65 |
14 |
4-14 |
130 |
95 |
65 |
16 |
4-14 |
130 |
130 |
65 |
16 |
4-14 | |
|
20 |
130 |
105 |
75 |
14 |
4-14 |
130 |
105 |
75 |
16 |
4-14 |
150 |
150 |
75 |
16 |
4-14 | |
|
25 |
140 |
115 |
85 |
14 |
4-14 |
140 |
115 |
85 |
16 |
4-14 |
160 |
160 |
85 |
16 |
4-14 | |
|
32 |
165 |
135 |
100 |
16 |
4-18 |
165 |
135 |
100 |
18 |
4-18 |
180 |
180 |
100 |
18 |
4-18 | |
|
40 |
165 |
145 |
110 |
16 |
4-18 |
165 |
145 |
110 |
18 |
4-18 |
200 |
200 |
110 |
18 |
4-18 | |
|
50 |
203 |
160 |
125 |
16 |
4-18 |
203 |
160 |
125 |
20 |
4-18 |
230 |
230 |
125 |
20 |
4-18 | |
|
65 |
222 |
180 |
145 |
18 |
4-18 |
222 |
180 |
145 |
22 |
8-18 |
290 |
290 |
145 |
22 |
8-18 | |
|
80 |
241 |
195 |
160 |
20 |
8-18 |
241 |
195 |
160 |
22 |
8-18 |
310 |
310 |
160 |
22 |
8-18 | |
|
100 |
305 |
215 |
180 |
20 |
8-18 |
305 |
230 |
190 |
24 |
8-23 |
350 |
350 |
190 |
24 |
8-23 | |
|
125 |
356 |
245 |
210 |
22 |
8-18 |
356 |
270 |
220 |
28 |
8-25 |
400 |
270 |
220 |
28 |
8-25 | |
|
150 |
394 |
280 |
240 |
24 |
8-23 |
394 |
300 |
250 |
30 |
8-25 |
480 |
300 |
250 |
30 |
8-25 | |
|
200 |
457 |
335 |
295 |
28 |
12-23 |
457 |
360 |
310 |
34 |
12-25 |
600 |
375 |
320 |
38 |
12-30 | |
订货须知:
一、①气动球阀产品名称与型号②气动球阀口径③气动球阀是否带附件以便我们的为您正确选型。
二、若已经由设计单位选定公司的气动球阀型号,请按气动球阀型号直接向我司销售部订购。
三、当使用的场合非常重要或环境比较复杂时,请您尽量提供设计图纸和详细参数,由我们的专家为您审核把关。
感谢您访问我们的网站,如有任何疑问.您可以致电给我们,我们一定会尽心尽力为您提供优质的服务。


